Откатные двери одно- и двустворчатые тяжелой серии (ОД/ОДД)
- Поверхность выполнена из оцинкованной стали толщиной 0,65 мм*
- Пенополиуретан фирмы ДауИзолан
- Резиновое уплотнение по контуру двери;
- Каркас двери выполнен из алюминиевого профиля;
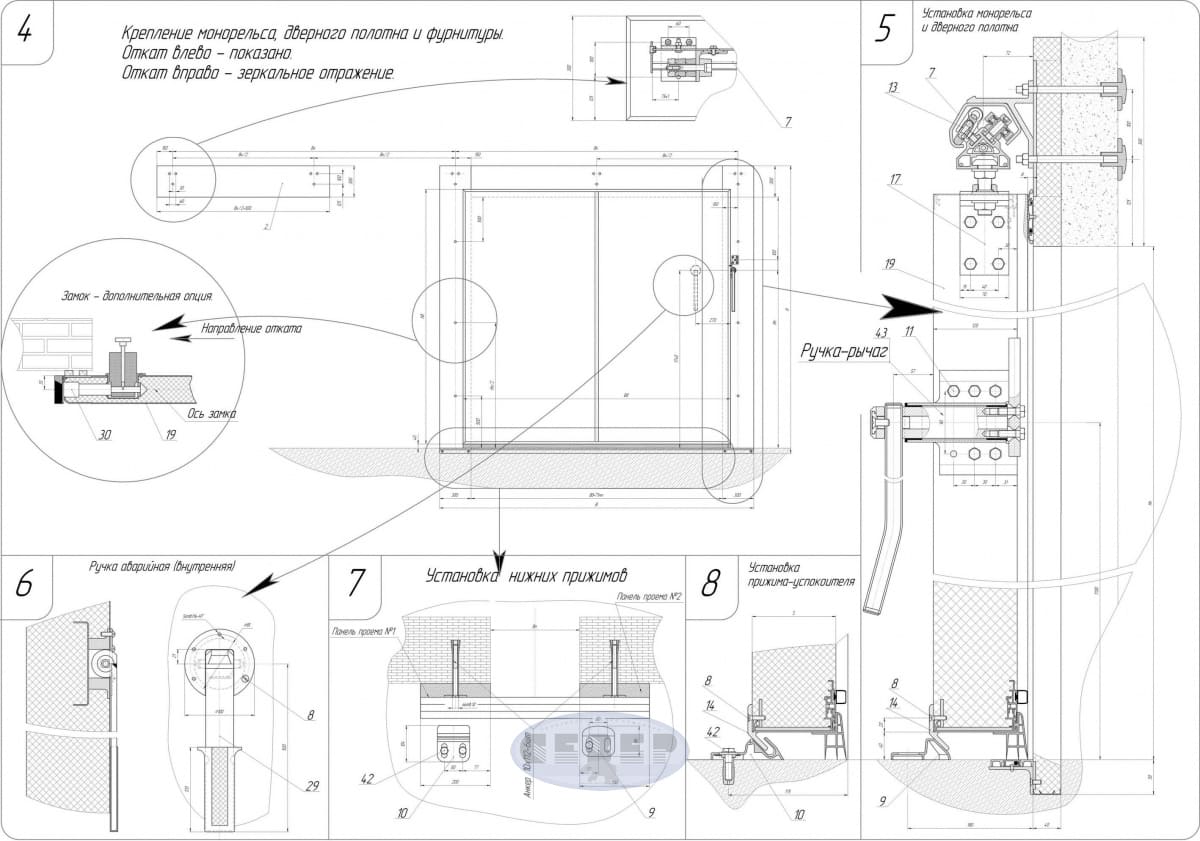
- Ручка-рычаг для облегчения открывания двери
- Возможность исполнения дверей как с порогом, так и без порога.
- Нижняя направляющая и прижим-успокоитель.
- Стальной оцинкованный монорельс.
*- изготовитель оставляет за собой право вносить в конструкцию изделия изменения, не ухудшающие его работу, без дополнительного уведомления
Возможно изготовление дверей с электроприводом.
Срок изготовления от 4-х до 8-и недель (цены вы можете узнать у менеджеров).
Под заказ изготавливаются двустворчатые откатные двери
Характеристики
Размеры
Наша компания изготавливает двери толщиной 80 и 120 мм:
- Среднетемпературные и низкотемпературные;
- Беспороговые;
- С левым или правым навесом петель.
В среднетемпературном (СТ-80) исполнении двери предназначены для эксплуатации при температуре до -5°.
В низкотемпературном исполнении (НТ) двери предназначены для эксплуатации при температурах от -5° до -20° (НТ-80), до -45° (НТ-120), комплектуются одноконтурным электрообогревом, вставленным в алюминиевый профиль на дверном проеме.
Для обогрева беспороговых дверей используется опции:
- Облегченная порожная планка из алюминия с уложенным ПЭНом;
- Усиленная порожная планка из нержавеющей стали с уложенным ПЭНом.
Стандартные размеры приведены в прайс-листе.
Изоляция
Жесткий пенополиуретан фирмы ДауИзолан, нагнетенный под высоким давлением, плотностью 40-45 кг/м3. Минимальное количество пор. Не содержит хлорфторуглеродов. Предел огнестойкости EI 15. Допускается использование для пищевых продуктов.
Конструкция
Рама дверного полотна изготовлена из анодированного алюминиевого профиля.
Покрытие
Стальной лист толщиной 0,45-0,65 мм, оцинкованный и окрашенный полиэфирной краской 25 мкм. Цвет белый «RAL 9003». Покрытие отслаивающейся защитной пленкой, которая обеспечивает защиту двери от повреждений при транспортировке и монтаже. Допускается использование для пищевых продуктов.
По желанию заказчика покрытие может быть выполнено из:
- Неокрашенной оцинкованной стали;
- Нержавеющей стали AISI 304/430 (для пищевой/непищевой промышленности), шлифованная или шлифованная декоративная с рисунком «Мороз»;
- Из окрашенной оцинкованной стали по таблице цветов RAL;
- Рифленого алюминиевого листа (квинтета).
Герметичность
Съемное двухконтурное резиновое уплотнение по периметру (сотовая структура) на опоре из ПВХ во избежание мостов холода. Двери для низкотемпературных камер (НТ) оборудованы двухконтурным электрообогревом периметра примыкания двери к раме.
Фурнитура
Откатные двери компании ООО ПК «Продмаш» комплектуются ручками рычажного типа, для облегчения открывания двери снаружи. Для удобства открытия двери изнутри, используется усиленная ручка-рычаг.
Система фиксации дверного полотна складывается из направляющей и двух прижимов, которые устанавливаются на полу в противоположных сторонах двери в зависимости от их отката. Так же вместо направляющей и прижимов, можно использовать боковую направляющую МТН, которая крепится к стене или в сендвич-панеле. Благодаря такой конструкции, исключается попадание посторонних предметов в направляющие профиля холодильной двери и обеспечивается надежность и долговечность эксплуатации.
В комплект двери входит комплект крепления дверной рамы к сэндвич-панели или к бетонной стене (уточняется заказчиком).
Дверной проем
- Накладной или монолитный дверной проем из ППУ панелей, с соединением «шип-паз» или замок.
- Встраиваемый проем в холодильную камеру с соединением «шип-паз» / замок.
- Проём на раме ПВХ
- Проём с вырезом под кран-балку и с использованием 2-х монорельсов.
- Комбинированная облицовка проема пластиковым профилем с Al (дополнительная опция)
Доп. опции
- Возможность комплектации двери одинарным стеклопакетом 400х400 или 300х1000 мм
- Отбойник на двери.
- Возможность изготовления дверей с электроприводом.
- Изготовление двустворчатых дверей
- Замок МТН
- Защитный кожух для монорельса
Чертежи
Монтаж дверей
Варианты исполнения
ОД с замковой рамой
Накладной дверной проем из ППУ-панелей, соединенных эксцентриковым замком
ОД с профильной рамой и проемом под кран-балку
Накладной проем из ППУ-панелей, с соединением "шип-паз"
ОД с ПВХ рамой, направляющей МТН и электроприводом
ОД дверь тяжелой серии с электроприводом
ОД с ПВХ рамой и направляющей МТН
Накладной дверной ПВХ проем
ОДД с замковой рамой
Откатная двустворчатая дверь с проемом из ППУ-панелей, соединенных эксцентриковым замком
ОДД на ПВХ раме
Откатная двстворчатая дверь с проемом из ПВХ и направляющими МТН
Варианты покрытия полотна